全国服务热线
首页>>新闻动态>>北京防爆泄压
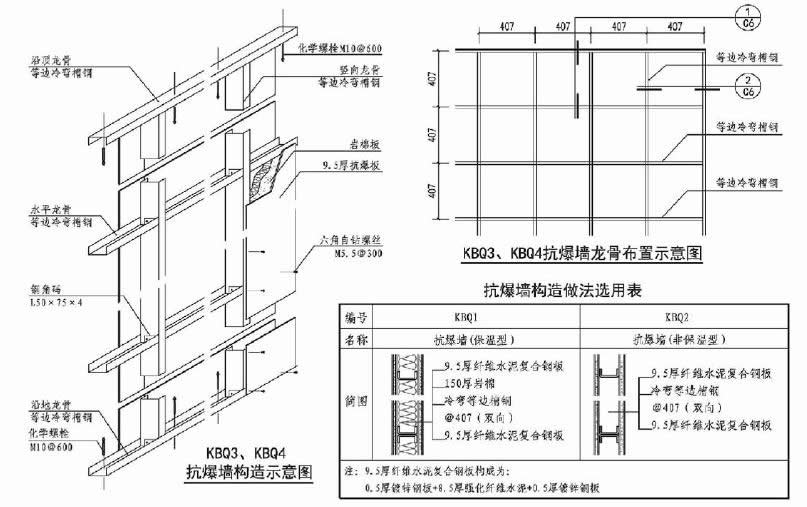
北京抗爆墙构造做法示意图仅以保温型示例,非保温型北京抗爆墙构造做法基本相同,可参照使用。
北京泡沫混凝土泄爆墙
北京纤维水泥板泄压墙
北京企口装饰面泄爆墙
北京控制室抗爆墙改造
北京变电站泄爆墙
北京装饰泄爆墙
北京企口饰面泄爆板
北京防爆墙施工
聚安环境专注北京抗爆墙,北京防爆墙,北京泄压墙,北京岩棉夹芯板泄爆墙,北京可拆卸变电站泄压墙,北京泄爆墙,北京抗爆吊顶,北京泄爆屋面安装
豫ICP备18040334号-1
QQ咨询
联系电话
微信扫一扫
返回顶部